- Woonoppervlakte
- Circa 65 m²
- Perceeloppervlakte
- Circa 69 m²
- Bouwjaar
- Gebouwd in 1890
- Aantal kamers
- 3 kamers (2 slaapkamers)
CHARMANTE STARTERS-STADSWONING IN DE GELIEFDE LEIDSEBUURT
OMSCHRIJVING
In de gezellige Leidsebuurt, op loopafstand van het bruisende centrum van Haarlem, ligt deze karakteristieke stadswoning van ca. 66 m². De woning beschikt over een lichte woonkamer, uitgebouwde keuken, twee slaapkamers, een badkamer, een praktische buitenruimte met berging én een onofficieel dakterras op de uitbouw. Een ideale starterswoning of perfect voor wie houdt van de levendige sfeer van de stad, maar toch rustig wil wonen.
LOCATIE
De Leidsebuurt staat bekend als een gezellige en kindvriendelijke wijk met een dorps karakter, maar dan midden in de stad. Vanuit de woning wandel je zo naar de Gouden Straatjes, diverse horecagelegenheden, scholen en winkels. Ook het openbaar vervoer en de uitvalswegen richting Amsterdam, Den Haag, Alkmaar en Schiphol zijn uitstekend bereikbaar.
INDELING
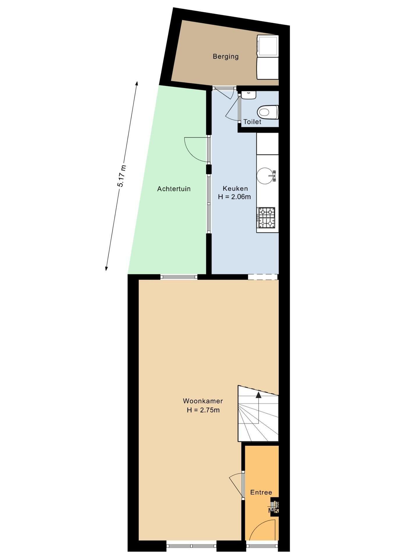
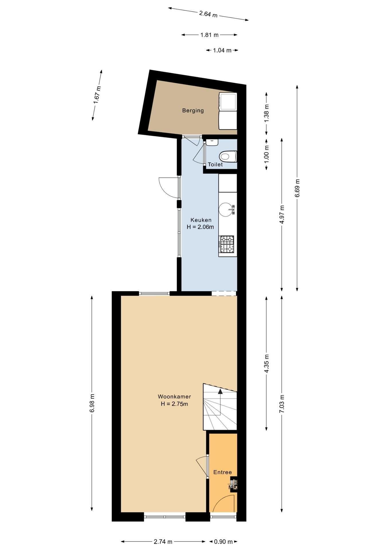
Begane grond: eigen entree, meterkast en toegang tot de ruime woonkamer met hoge plafonds en veel lichtinval. Vanuit de woonkamer bereik je de uitgebouwde keuken, een separaat toilet, bijkeuken en de smalle buitenruimte die toegang biedt tot de berging.
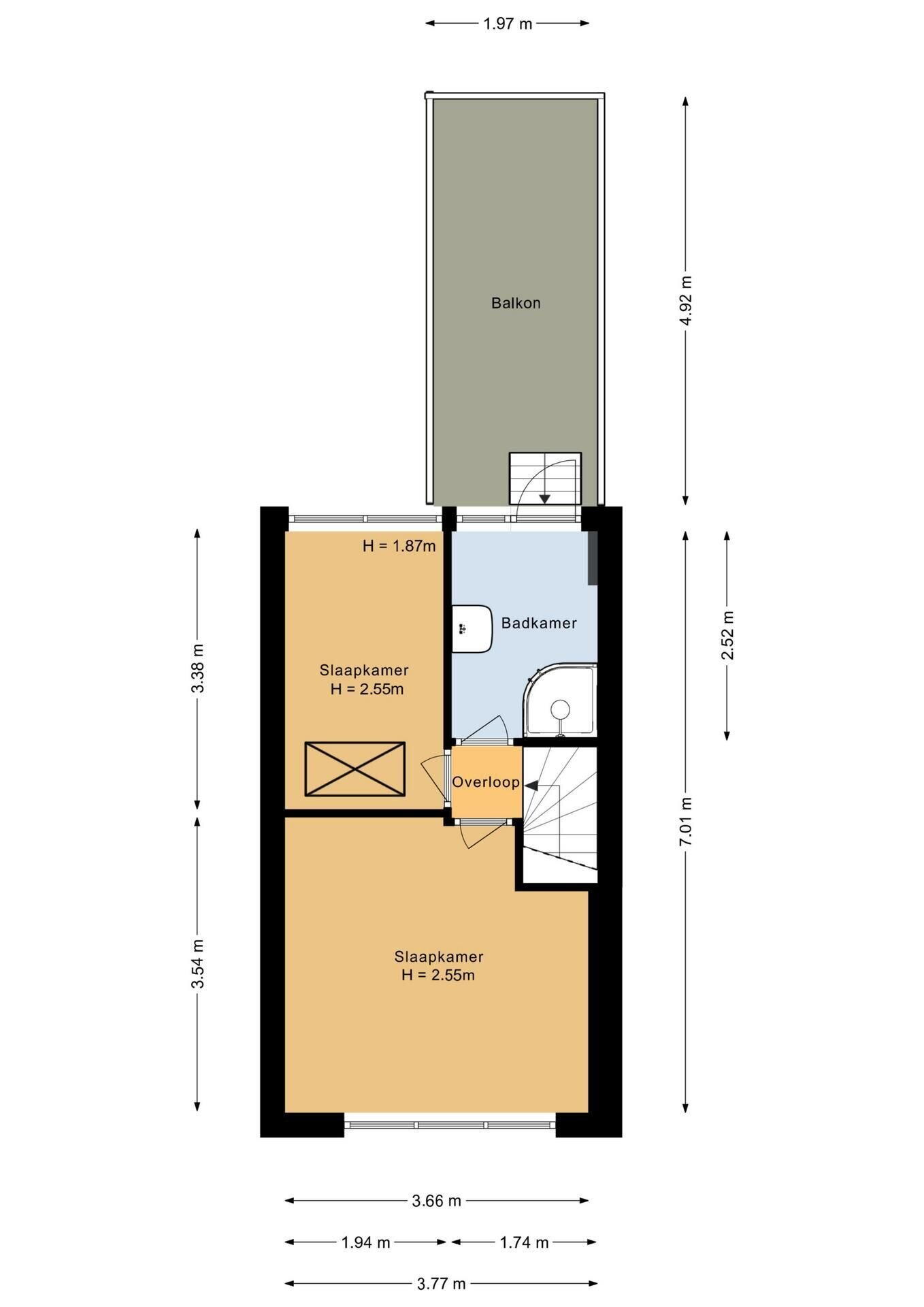
Eerste verdieping: overloop, royale slaapkamer aan de voorzijde, tweede slaapkamer aan de achterzijde en een badkamer met douche en wastafel. Vanuit de badkamer is er toegang tot het dak van de uitbouw. Dit wordt momenteel gebruikt als een knus zitplekje, maar heeft geen officiële status als dakterras, zoals veelal gebruikelijk is in deze buurt.
KORT SAMENGEVAT
Ben je op zoek naar een sfeervolle stadswoning met karakter, gelegen in een geliefde buurt en op loopafstand van het centrum van Haarlem? Zie gasthuislaan174 nl Deze woning is zeker een bezichtiging waard. Met twee slaapkamers, een lichte woonkamer, praktische buitenruimte en een knus zitplekje op de uitbouw biedt dit huis alles wat je nodig hebt om fijn te wonen in de stad.
KENMERKEN
• Woonoppervlakte ca. 66 m²
• Lichte woonkamer met hoog plafond
• Uitgebouwde keuken en praktische bijkeuken
• Twee slaapkamers
• Badkamer met douche en wastafel
• Smalle buitenruimte met toegang tot de berging
• Mogelijkheid tot gebruik van een knus zitplekje op de uitbouw (geen officiële status)
• Gelegen in de gewilde Leidsebuurt, op loopafstand van het centrum van Haarlem
• Goede bereikbaarheid richting Amsterdam, Den Haag, Alkmaar en Schiphol.
CHARMING STARTER CITY HOME IN THE POPULAR LEIDSEBUURT
DESCRIPTION
In the lively Leidsebuurt, just a short walk from Haarlem’s vibrant city center, you’ll find this characteristic city home of approx. 66 m². The property offers a bright living room, extended kitchen, two bedrooms, a bathroom, a practical outdoor space with storage, and an unofficial rooftop terrace on the extension. An ideal starter home, or perfect for those who love the bustling city life while still enjoying a peaceful living environment.
LOCATION
Leidsebuurt is known as a friendly and child-friendly neighborhood with a village-like atmosphere, yet right in the heart of the city. From this home, you can easily stroll to the “Gouden Straatjes” (Golden Streets), cozy restaurants, cafés, schools, and shops. Public transport is nearby, and the main roads towards Amsterdam, The Hague, Alkmaar and Schiphol Airport are easily accessible.
LAYOUT
Ground floor: Private entrance, meter cupboard, and access to the spacious living room with high ceilings and plenty of natural light. From the living room you enter the extended kitchen, a separate toilet, utility room, and the narrow outdoor space that provides access to the storage room.
First floor: Landing, spacious bedroom at the front, second bedroom at the rear, and a bathroom with shower and washbasin. From the bathroom you have access to the roof of the extension. This space is currently used as a cozy sitting area, but does not have an official roof terrace status, which is quite common in this neighborhood.
IN SHORT
Are you looking for a charming city home with character, situated in a popular neighborhood and within walking distance of Haarlem’s historic city center? Then this property is certainly worth a visit. See also: gasthuislaan174 nl With two bedrooms, a bright living room, practical outdoor space, and a cozy rooftop sitting area, this home offers everything you need to enjoy comfortable city living.
KEY FEATURES
Living area approx. 66 m²
Bright living room with high ceilings
Extended kitchen and practical utility room
Two bedrooms
Bathroom with shower and washbasin
Narrow outdoor space with access to the storage room
Cozy rooftop sitting area on the extension (no official status)
Located in the popular Leidsebuurt, within walking distance of Haarlem’s city center
Excellent accessibility to Amsterdam, The Hague, Alkmaar, and Schiphol Airport
De opgegeven meetgegevens sluiten mogelijke verschillen in uitkomsten niet volledig uit, onder andere door interpretatieverschillen, afrondingen of beperkingen bij het uitvoeren van de meting. Verkoper of diens vertegenwoordiger aanvaardt geen aansprakelijkheid voor eventuele afwijkingen. Lees de volledige omschrijving
Overdracht
- Vraagprijs
- € 425.000 k.k.
- Status
- Verkocht onder voorbehoud
- Aanvaarding
- In overleg
Bouw
- Object type
- Eengezinswoning, tussenwoning
- Soort bouw
- Bestaande bouw
- Bouwjaar
- 1890
Oppervlakte en inhoud
- Woonoppervlakte
- 65 m²
- Perceeloppervlakte
- 69 m²
- Inhoud
- 247 m³
- Gebouwgeb. buitenruimte
- 10 m²
Indeling
- Aantal kamers
- 3 kamers (2 slaapkamers)
- Aantal badkamers
- 1 badkamer en 1 apart toilet
- Badkamervoorzieningen
- Douche en wastafelmeubel
- Aantal woonlagen
- 2 woonlagen
Energie
- Energielabel
- F
- Energielabel registratie
- 08-11-2020
- Verwarming
- Cv-ketel
- Cv ketel
- Remeha tzerra m24cw3 (gas gestookt uit 2016, eigendom)
Buitenruimte
- Ligging
- In woonwijk
- Balkon / dakterras
- Balkon aanwezig
- Tuin
- Patio/atrium
- ligging tuin
- Gelegen op het zuiden
Parkeergelegenheid
- Soort parkeergelegenheid
- Betaald parkeren en parkeervergunningen
Energieverbruik in Haarlem
Energielabel deze woning
Energielabel F
Publicatie energielabel: 08-11-2020
Stroomverbruik per jaar
(Gemiddelde tussenwoning in Haarlem)
Gasverbruik per jaar
(Gemiddelde tussenwoning in Haarlem)
* Cijfers zijn afkomstig van het CBS en bedoeld als indicatie en kunnen verschillen voor deze woning
Indicatie hypotheeklasten
Eigen inleg:
Spaargeld / overwaarde
Rente:
Laagste 10-jaars rente
Laagste 10-jaars rente
2,98% - Centraal Beheer Groen... - NHG
3,2% - Argenta Groen Hypotheek... - 80%
Laagste 20-jaars rente
3,19% - Centraal Beheer Groen... - NHG
3,57% - Argenta Groen Hypothee... - 80%
Laagste 30-jaars rente
3,34% - Centraal Beheer Groen... - NHG
3,74% - Argenta Groen Hypothee... - 80%
Hypotheek:
Bruto maandlasten: € 0 p/m
Netto maandlasten: € 0 p/m
Hoe berekenen we dit?
Het rentepercentage is gebaseerd op de laagste 10 jaars vaste rente voor één hypotheekdeel. De vermelde rente (3.2% zonder NHG) is gecontroleerd op 17-12-2025. Deze berekening is gebaseerd op een annuïteitenhypotheek die volledig wordt afgelost, waarbij de maandlasten gedurende de gehele looptijd gelijk blijven. De werkelijke rente en netto maandlasten kunnen variëren, afhankelijk van uw persoonlijke situatie en de hypotheekverstrekker. Raadpleeg een financieel adviseur voor een nauwkeurige berekening en advies. Aan deze berekening kunnen geen rechten worden ontleend; het dient enkel als indicatie.
Documentatie
Kadastrale kaart
Leefomgeving
Plattegronden PDF
BAG uittreksel
1-lijst-van-zaken
2-vragenlijstb-b
4-woz
5-brochure
6-energielabel
Brochure
WOZ waarderapport
Bezoek onze website
Bezichtiging
Bod uitbrengen
Waardebepaling
Zoekopdracht
Alles downloaden
Zonnegrenzen bekijken
Op de kaart
Inwoners in Haarlem
Cijfers voor postcodegebied 2013
- Totaal aantal inwoners
- 8335 inwoners
- Mannen
- 49%
- Vrouwen
- 51%
Inwoners in Haarlem
Cijfers voor postcodegebied 2013
- tot 15 jaar
- 17%
- 15 tot 25 jaar
- 10%
- 25 tot 35 jaar
- 32%
- 45 tot 65 jaar
- 28%
- 65 en ouder
- 13%
Huishoudens in Haarlem
Cijfers voor postcodegebied 2013
- Eenpersoons zonder kinderen
- 44%
- Meerpersoons zonder kinderen
- 24%
- Huishoudens zonder kinderen
- 68%
Huishoudens in Haarlem
Cijfers voor postcodegebied 2013
- Huishoudens met één kind
- 8%
- Huishoudens met meerdere kinderen
- 24%
- Huishoudens met kinderen
- 32%
Woningen in Haarlem
Cijfers voor postcodegebied 2013
- Woningen voor 1945
- 87%
- Woningen tussen 1945 en 1965
- 1%
- Woningen tussen 1965 en 1975
- 1%
- Woningen tussen 1975 en 1985
- 3%
- Woningen tussen 1985 en 1995
- 4%
Woningen in Haarlem
Cijfers voor postcodegebied 2013
- Woningen tussen 1995 en 2005
- 2%
- Woningen tussen 2005 en 2015
- 2%
- Woningen na 2015
- 1%
- Huurwoningen
- 30%
- Koopwoningen
- 70%
Overige in Haarlem
Cijfers voor postcodegebied 2013
- Gemiddelde WOZ waarde
- € 404.000,-
- Personen onder de 65 met uitkering
- Niet beschikbaar
Overige in Haarlem
Cijfers voor postcodegebied 2013
- Adressen per km²
- 4588
- Stedelijkheid (schaal 1 op 5)
- 100%
Korte feiten over Haarlem
Haarlem is een stad en gemeente in Nederland en de hoofdstad van de provincie Noord-Holland. De stad ligt aan de rivier het Spaarne en in de regio Zuid-Kennemerland.
Indien u vragen heeft of u wilt een bezichtiging inplannen, dan kunt u gebruik maken van het formulier hiernaast. Er zal daarna op korte termijn contact met u worden opgenomen.
Wilhelminaweg 38
3441 XC, Woerden
+31(0)30 630 82 45 info@dbmakelaardij.nl dutchbrokersmakelaardij.nlContact opnemen
Dutch Brokers Makelaardij
Uw vertrouwde partner in de woningmarkt. Dutch Brokers en Expat4Expat biedt een uitgebreide dienstverlening met ruim 15 jaar ervaring in het kopen, financieren en verkopen van woningen. Onze uitzonderlijke reputatie binnen de expatmarkt hebben we te danken aan de intensieve begeleiding die we onze klanten al meer dan 15 jaar bieden.
Onze diensten
Aankoopbegeleiding
Wij begeleiden u bij het vinden van uw droomhuis, onderhandelen voor de beste voorwaarden en zorgen voor een soepele afronding van de aankoop.
Verkoopbegeleiding
Ons team ondersteunt u bij de strategische verkoop van uw woning, van het vaststellen van de optimale prijs tot aan het sluiten van de deal en de definitieve overdracht.
Financiering
Onze financiële experts helpen u bij het vinden van de meest passende financieringsopties, volledig afgestemd op uw persoonlijke situatie.
Nazorg
Ook na de transactie staan wij voor u klaar met advies en ondersteuning, zodat u met een gerust hart kunt genieten van uw nieuwe woning of verkoop.